展望型-拓展視野的亮麗風格,高雅華麗、耀眼奪目
展望型 PL-D
天花板:CCS-22
操作盤:COP-51
扶 手:髮紋不鏽鋼
地 板:石材拼花
前壁板:霧面不鏽鋼
廂 門:霧面不鏽鋼
壁 板:彩妝鋼板

• 樣式

三側透明

六角形

半圓形

 

後側透明

• 地板拼花參考樣式(大理石或石英磚)

CGS51

CGS51

CGS52

CGS52

CGS53

CGS53

 CGS57

CGS57

CGS55

CGS55

CGS56

CGS56

 

 

• 壁板色樣

鏡面不銹鋼

鏡面不鏽鋼

霧面不銹鋼

霧面不銹鋼

髮紋不銹鋼

髮紋不銹鋼

鍍鈦鏡面蝕刻

鍍鈦鏡面蝕刻

鍍鈦不銹鋼

鍍鈦不銹鋼

 

 

 

• 到樓指示器與乘場指示燈

FPI-51

FPI-52

FPI-54

 

• 操作盤

車廂操作盤

COP-52一體式操作盤觸控式按鈕

 

車廂操作盤

COP-62一體式操作盤觸控式按鈕

乘場操作盤

EOP-53觸控式按鈕

 

 

 

 

 

 

乘場操作盤

EOP-63觸控式按鈕

 

 

 

 

 

 

• 加價選配

• LED環境燈光系統

可配合不同的節慶、情境與裝潢改變燈光、轉變或閃爍之效果,與您建築物的設計氛圍融合,提升空間的質感,亦具備節能效果。

 

 

 

• 專用液晶顯示器

可運用全彩液晶顯示大樓或住家資訊,特殊公共場所如:餐廳、表演廳等,也可依活動進行商業展示,提供民眾在搭乘電梯的樂趣。

液晶螢幕  液晶螢幕

 

• 門禁管制系統

晶片感應式:藉由感應卡(扣)識別身分是否正確,來決定能否進入管制之電梯。

刷卡密碼式:可選擇刷卡或加設密碼的方式,來識別磁卡或個人密碼是否正確,來決定能否進入管制之電梯。

指紋辨識式:指紋辨識系統為最科學且有效率之系統,精密監控人員身分,並可避免傳統磁卡損毀、密碼外洩、遺忘、遺失等問題。

其他:可依客戶需要提供客製化之門禁管制及預先叫車服務。

• 光幕防夾系統

可將安全觸板設為光幕使乘客無須碰觸擊可感應到,做多重安全之保護。

光幕

 

• 扶手樣式

SHR-5

SHR-5

WHR-6

WHR-6

 SHR-2

SHR-2

 SHR-3

SHR-3

 

 

 • 標準與選配

特色 分類 功能名稱 典雅型 精緻型 展望型
空間與彈性 開門方式 兩片中央對開式自動門門(CO) ●  ●  ● 
兩片中央側開式自動門門(2S) ●  - -
四片中央對開式自動門門(4C) - ●  ● 
廂內操作盤 不鏽鋼髮紋面板 ●  - ● 
一體成型門扉式 - ●  ● 
便利與貼心 門檻排汙孔 ●  ●  ● 
車廂清潔用插座 ▲  ▲  ▲ 
環境與安全 現載重 防止超載裝置 ●  ● 
通 訊 車廂與管理室(乘場)對講機
電話(須自備門號)  ▲  ▲  ▲ 
防夾 單側安全觸板 - -
雙側安全觸板 ▲  ●  ▲ 
超音波門感應裝置 ▲  ▲  ▲ 
車廂門負載偵測
門感測器自我診斷 ▲ 
紅外線光幕 ▲ 
災害防護 地震運轉管制裝置
停電照明裝置 ▲  ▲ 
停電自動到樓裝置
機坑進水警示、管制
安全到樓機能(預設指定樓層)  ▲  ▲  ▲ 
消防人員運轉裝置 ▲  ▲  ▲ 
火災回歸運轉裝置 ▲  ▲  ▲ 
緊急電源運轉裝置 ▲  ▲  ▲ 
保 全 指紋辨識管制 ▲  ▲  ▲ 
晶片感應管制 (刷卡、感應、密碼)  ▲  ▲  ▲ 
保全叫車系統(專屬樓層)  ▲  ▲  ▲ 
乘場密碼式叫車 ▲  ▲  ▲ 
車廂乘客動作異常感知器 ▲  ▲  ▲ 
福祉設施
(僅適用於典雅型)
專用扶手 ▲  ▲  ▲ 
明鏡及凸透鏡 ▲  ▲  ▲ 
盲人點字
專用副操作盤 ▲  ▲  ▲ 
智慧與科技 乘場叫車型式 選擇性集合式 ▲  ▲  ▲ 
上行或下行選擇性集合式
多台聯動控制(群控) 
車廂錯誤叫車取消
人性化功能 車廂嬉戲自動取消 ▲ 
滿載時自動通過機能 ▲  ▲  ▲ 
開關門時間自動調節 ▲  ▲  ▲ 
關門延遲按鈕 ▲  ▲  ▲ 
多語系語音播報系統(福祉設施)
專人使用 車廂內各樓層管制鎖 ▲  ▲  ▲ 
多台時指定獨立運轉
專人服務運轉 ▲  ▲  ▲ 
乘場停機開關
任意不服務樓切換
自我診斷修復 重覆關門動作(異物排除)
電源於開啟後自動著床
節能功能 車廂風扇自動關閉
車廂照明自動關閉 (依型式為準)
電梯狀態指示 乘場指示(精緻型) ▲  (依型式為準)
車廂、乘場點陣式顯示器 ●  - ▲ 
車廂、乘場單色液晶顯示器 - ●  ▲ 
車廂、乘場彩色液晶顯示器 ▲  ▲  ▲ 
電梯監控 近端監控(管理室)  ▲  ▲  ▲ 
遠端監控 ▲  ▲  ▲ 
廣角CCTV ▲  ▲  ▲ 
      ●標準配備 ▲加值選配

 

          規格
乘客梯型號
乘客載重 速度
m/min
升降道
B1xB2
車廂
A1xA2xH1
開門
型式
開門尺寸
WxH2
頂部距離
OH≥
機坑深度
PIT
反力(㎏)
R1 R2
SCP -08 8人
(550㎏)
60 2250x1650 1400x1030x2300 CO 800x2100 4350以上 1600 4550 3200
90 4550以上 1850 6800 5450
SCP -09 9人
(600㎏)
60 2250x1800 1400x1100x2300 CO 800x2100 4350以上 1600 5000 4050
90 4550以上 1850 7500 6050
SCP -10 10人
(700㎏)
60 2300x1800 1400x1250x2300 CO 800x2100 4350以上 1600 5330 4200
90 4550以上 1850 8000 6300
105 4750以上 2150 12000 9450
120 16000 12550
SCP -11 11人
(750㎏)
60 2300x1900 1400x1350x2300 CO 800x2100 4350以上 1600 5650 4450
90 4550以上 1850 8500 6650
105 900x2100 4750以上 2150 12700 10000
120 2150 17000 13300
SCP -12 12人
(800㎏)
60 2300x1950 1400x1400x2300 CO 900x2100 4350以上 1600 6000 4700
90 4550以上 1850 9000 7050
105 4900以上 2150 13450 10550
120 2150 17950 14050
150 5100以上 2450 21500 16850
SCP -13 13人
(900㎏)
60 2400x2000 1600x1350x2300 CO 900x2100 4350以上 1600 6650 5170
90 4500以上 1850 9950 7750
105 2400x2100 4C 1200x2100 4750以上 2150 14300 11650
120 19900 15500
150 5100以上 2450 25000 18600
SCP -15 15人
(1000㎏)
60 2550x2000 1600x1500x2300 CO 1000x2100 4350以上 1600 7150 5500
90 4550以上 1850 10700 8250
105 2550x2000 4C 1200x2100 4750以上 2150 16050 12350
120 2150 21350 16500
150 5100以上 2450 25650 19750
SCP -17 17人
(1150㎏)
60 2600x2100 1600x1600x2500 CO 1000x2100 4550以上 1600 7770 5900
90 4750以上 1850 11700 8850
105 2600x2100 4C 1200x2100 4950以上 2150 17500 13300
120 22350 17700
150 5100以上 2450 26350 21250
SCP -20 20人
(1350㎏)
60 2850x2200 1800x1700x2500 CO 1000x2300 4500以上 1600 8750 6650
90 4750以上 1850 13150 9850
105 2800x2300 4C 1400x2300 4950以上 2150 19700 14750
120 26250 19650
150 5100以上 2450 31500 23600
SCP -24 24人
(1600㎏)
60 2890x2400 2000x1750x2500 CO 1000x2300 4550以上 1600 10250 7650
90 4750以上 1850 15350 11450
105 2850x2500 4C 1400x2300 4950以上 2150 23000 17150
120 30650 22850
150 5100以上 2450 36700 27400
規格
乘客梯型號
乘客載重 速度
m/min
升降道
B1xB2
車廂
A1xA2xH1
開門
型式
開門尺寸
WxH2
頂部距離
OH≥
機坑深度
PIT
反力(㎏)
R1 R2
SCB -11 11人
(750㎏)
60 2200x2800 1300x2300x2300 2S 1100x2100 4350以上 1600 6800 5600
90 4550以上 1850 10900 8350
SCB -15 15人
(1000㎏)
60 2400x3000 1500x2500x2300 2S 1100x2100 4550以上 1600 8300 6650
90 4750以上 1850 12400 9950
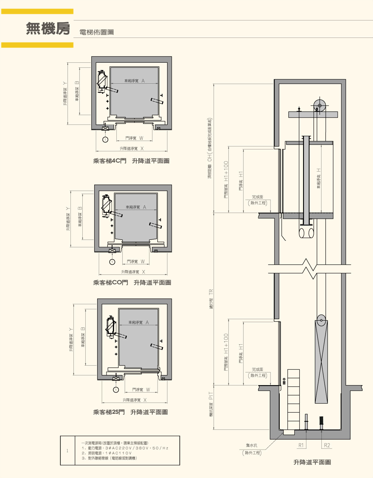
無機房電梯是用於12停止站或行程40M以下   ,升降道內溫度應保持5°C~40°C之間,升降道垂直誤差值在5CM以內。配重側增加剎車時,升降道尺寸需另外規劃。

 

 

規格
乘客梯型號
乘客載重 速度
m/min
升降道
X*Y
車廂
A1xA2xHZ
開門
型式
開門尺寸
WxH2
頂部距離
OH≥
機坑深度
PIT
機房 反力(㎏)
MAxMBxMH R1 R2 R3 R4
SAP -08 8人
(550㎏)
60 1800x1630 1400x1030x2300 CO 800x2100 4450 1550 2400x3300x2050 4500 3600 3200 2100
90 1850x1650 4650 1850 3000x3400x2250 6800 5400
SAP -09 9人
(600㎏)
60 1850x1700 1400x1100x2300 CO 800x2100 4450 1550 2400x3400x2050 4800 3800
3350


2200

90 1850x1750 4650 1850 3000x3600x2250 7200 5700
105 4850 2150 8400 6650
120 13000 10000
SAP -10 10人
(700㎏)
60 1800x1850 1400x1250x2300 CO 800x2100 4450 1550 2400x3600x2050 5350 4150

3700



2350

90 1850x1900 4650 1850 3000x3600x2250 7950 6250
105 4850 2150 9300 7250
120 13900 10850
SAP -11 11人
(750㎏)
60 1800x1950 1400x1350x2300 CO 800x2100 4450 1550 2400x3700x2050 5600 4400 4350 2500
90 1950x2000 4650 1850 3000x3700x2250 8400 6600
105 900x2100 9800 7700 5100 3950
120 4850 2150 14800 11500
SAP -12 12人
(800㎏)
60 1800x2000 1400x1400x2300 CO 800x2100 4450 1500 2200x4000x2050 6000 4600 4400 2650
90 1950x2050 4650 1850 3000x4000x2250 9000 6900

5100


3950

105 900x2100 10500 8500
120 4850 2150 15600 12150
150 5050 2450 21500 16850
SAP -13 13人
(900㎏)
60 2200x2100 1600x1350x2300 CO 1000x2100 4450 1550 2800x3800x2050 6600 5100 4800 2950
90 4650 1850 3200x3600x2250 9900 7650
105 4C 1200x2100 4850 2150 11550 8900
5850


4550

120 17350 13450
150 5050 2450 24900 18600
SAP -15 15人
(1000㎏)
60 2200x2250 1600x1500x2500 CO 1000x2300 4450 1550 2800x4000x2050 7100 5500 5200 3200
90 4650 1850 3200x4100x2250 10650 8250
105 4C 1200x2300 4850 2150 12450 9600 6200
4800

120 18650 14300
150 5050 2450 25650 19750
SAP -17 17人
(1150㎏)
60 2200x2350 1600x1600x2500 CO 1000x2100 4450 1550 3200x4200x2050 7800 5900
7050
4200

90 4650 1850 3200x4200x2250 11700 8850
105 4C 1200x2100 4850 2150 13650 10350
7450


4400

120 20400 15400
150 5050 2450 26350 21250
SAP -20 20人
(1350㎏)
60 2300x2450 1800x1700x2500 CO 1000x2300 4450 1550 3400x4300x2050 8800 6600 8600 4900
90 4650 1850 3400x4300x2250 13200 9900
105 2500x2500 4C 1400x2300 4850 2150 15400 11550
8900


5050

120 23000 17150
150 5050 2450 31500 23600
SAP -24 24人
(1600㎏)
60 2500x2500 2000x1750x2500 CO 1000x2300 4450 1550 3600x4400x2050 9950 7300 9100 4500
90 4650 1850 3600x4400x2250 15000 10950
105 2600x2600 4C 1400x2300 4850 2150 17400 12800
9500


5100

120 26000 19100
150 5050 2450 36700 27400
規格
乘客梯型號
乘客載重 速度
m/min
升降道
B1xB2
車廂
A1xA2xH1
開門
型式
開門尺寸
WxH2
頂部距離
OH≥
機坑深度
PIT

機房MAxMBxMH

反力(㎏)
R1 R2 R3 R4
SAB -11 11人
(750㎏)
60 2200x2800 1300x2300x2300 2S 1100x2100 4000 1600 3200x3400x2050 3900 3050 1200 1800
90 4500 1850 3200x3400x2250 4450 3450
SAB -15 15人
(1000㎏)
60 2400x3000 1500x2500x2300 2S 1100x2100 4500 1600 3400x4000x2050 4900 3750 1330 2300
90 4700 1850 3400x4000x2250 5600 4300
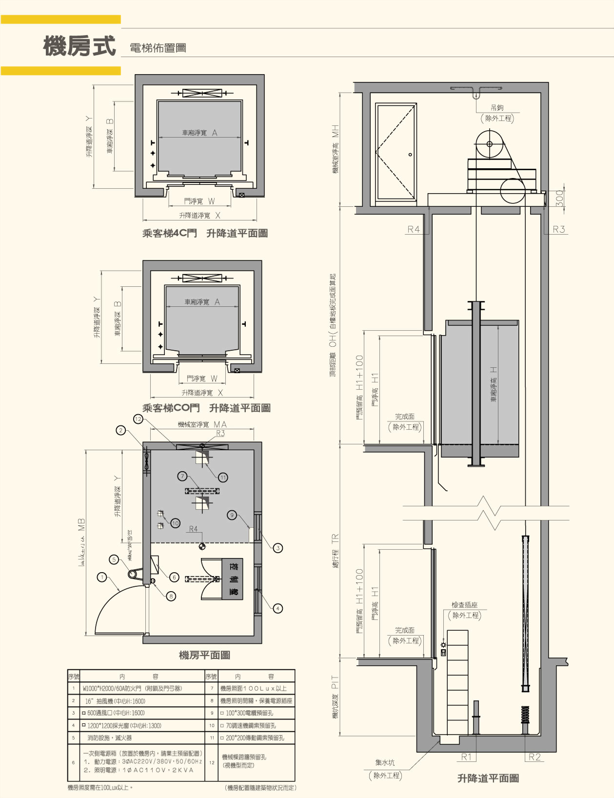
機房式適用於32停止站以下,典雅型適用於15乘以下,精緻型適用於13人乘以上之電梯。
升降道內溫度應保持在5°C~40°C之間,否則須提供空調設備,升降道垂直誤差值在5CM以內。

 

• 售後服務項目

1. 24小時全年無休的緊急維修服務。
2. 定期保養、檢查。
3. 提供原廠之零配件及程式升級。
4. 本公司提供新台幣6千4百萬之產品責任險。電梯故障或停電時請注意:
    A . 緊急照明燈可使乘客清楚辨示按扭,舒緩情緒
    B . 故障時換氣孔可以維持空氣流通。
    C . 緊急救出口(CNS規定)。
    D . 裝置停電運轉系統(選配)時,可靜候系統自動脫困。
    E. 透過車廂內之對講機可對外聯繫,如:管理室。
    F . 與本公司服務人員直接連絡。
※地震、火災、水災時絕對不可以使用電梯。

產品問與答

無機房電梯佈置圖

機房式_1.jpg


機房式電梯佈置圖

無機房_1.jpg