關於立穩
公司介紹
公司沿革
公司願景
產品與服務
商務電梯
典雅型
精緻型
展望型
住宅電梯
DRP
VRP
載貨電梯
YUHO優活螺桿梯
電梯改造
溫馨樓梯升降椅
保養服務
型錄下載
實績展示
商務電梯
住宅電梯
客貨電梯
YUHO優活螺桿梯
樓梯升降椅
自動走道與其他
最新消息
聯絡我們
繁體中文
简体中文
繁體中文
简体中文
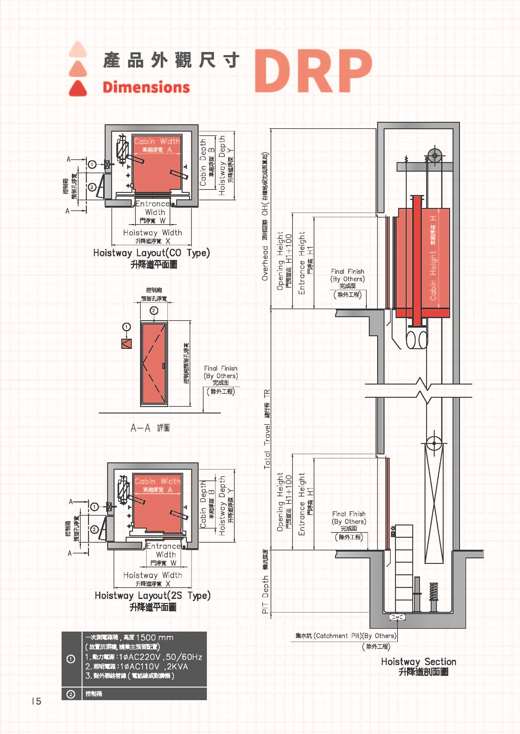
DRP
首頁
產品介紹
產品介紹
住宅電梯
DRP
DRP
簡單而不失大器的內裝設計,容易搭配住宅的裝修規劃,有多種設計方案提供消費者選用。採用節能LED燈,待機時自動休眠,節省成本。
間接光源柔和不傷眼睛、亮面不銹鋼橫式操作盤、便於年幼及長者使用、整片式地磚易於清潔,不必擔心髒污納垢。重視每個細節,確保電梯的安全,兼具行進間的舒適與高效率的運轉效率。
附件
2026home_comp..pdf
產品敘述
規格