關於立穩
公司介紹
公司沿革
公司願景
產品與服務
商務電梯
典雅型
精緻型
展望型
住宅電梯
DRP
VRP
載貨電梯
YUHO優活螺桿梯
電梯改造
溫馨樓梯升降椅
保養服務
型錄下載
實績展示
商務電梯
住宅電梯
客貨電梯
YUHO優活螺桿梯
樓梯升降椅
自動走道與其他
最新消息
聯絡我們
繁體中文
简体中文
繁體中文
简体中文
SCF/SAF
首頁
產品介紹
產品介紹
載貨電梯
SCF/SAF
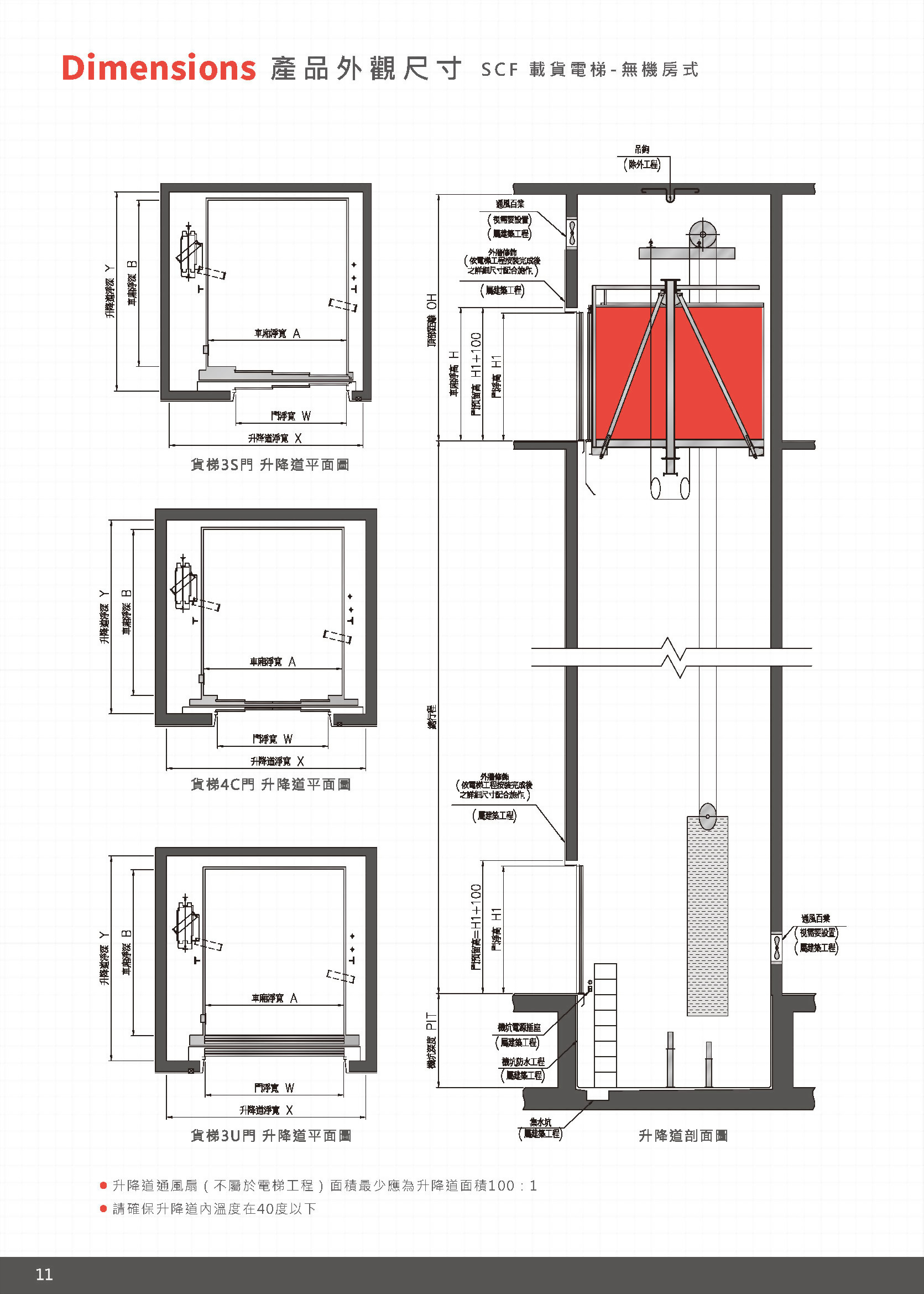
立穩貨用電梯,融合了科技與工藝技術,安全、平穩的運送貨物以超大承載量及堅固的結構設計,寬敞明亮的車廂造型,可提供大流量人員及貨物進出的大樓與廠房使用。
附件
2021-freight-elevator.pdf
規格